Działka budowlana, ul. Nowa
Nowa, Kazimierz Górniczy, Sosnowiec, śląskie
- 385 000 zł
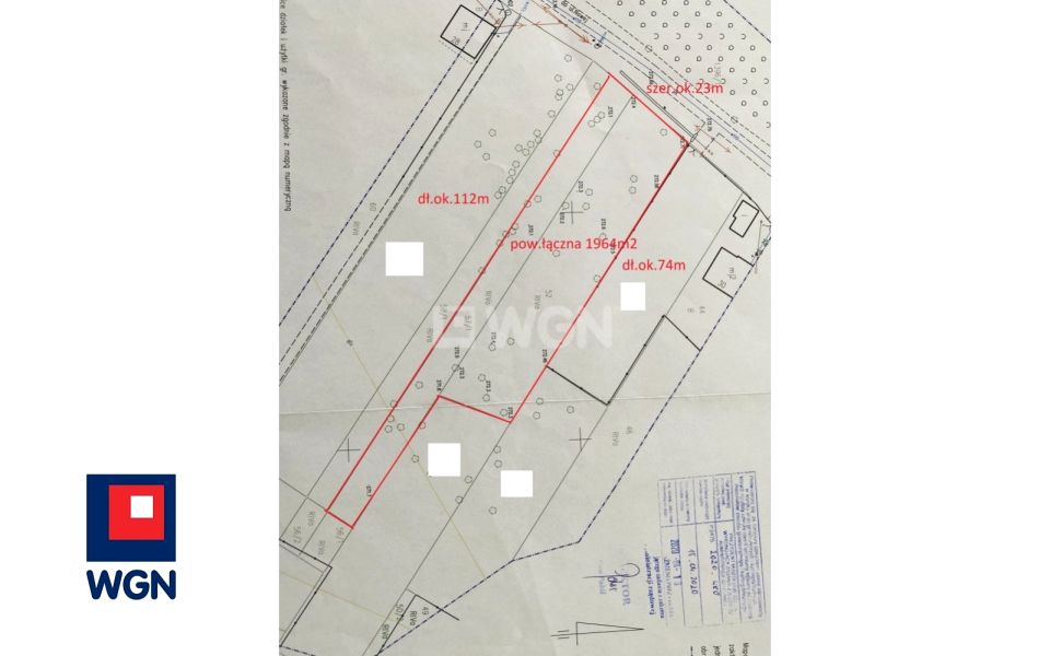
- 1 964 m²
- 196,03 zł/m²
Działka budowlana, ul. Nowa
Nowa, Kazimierz Górniczy, Sosnowiec, śląskie
zaktualizowane:
6 lutego 2026
Działka budowlana, ul. Nowa
Zaktualizowane: 6 lutego 2026
385 000 zł 1 964 m² 196,03 zł/m²
budowlana
droga utwardzona
prostokąt
prąd
Zobacz na mapie
Rodzaj działki:
budowlanaDojazd:
droga utwardzonaKształt:
prostokątMedia:
prądSzczegóły ogłoszenia
- Typ oferty: działka na sprzedaż
- Cena: 385 000 zł (196,03 zł/m²)
- Forma własności: własność
- Działka: budowlana, 1 964 m²
- kształt: prostokąt; szerokość: 23m; teren płaski, zalesiona
- dojazd drogą utwardzoną, ogrodzenie całkowite
- określone warunki zabudowy
- Media: prąd
- Źródło: biuro nieruchomości: WGN Jaworzno, zaktualizowane: 06.02.2026
- numer ogłoszenia: 116-3218
Lokalizacja
- Adres: Nowa, Kazimierz Górniczy, Sosnowiec, śląskie
Opis nieruchomości
Działka na sprzedaż Kazimierz Górniczy.
Na sprzedaż wyjątkowa działka budowlana położona w malowniczej dzielnicy Kazimierz Górniczy w Sosnowcu. Ta oferta to doskonała okazja inwestycyjna, dzięki unikalnemu położeniu w sąsiedztwie lasu i bliskości parku, co gwarantuje niepowtarzalny kontakt z naturą.
Lokalizacja
Działka znajduje się w cichej i spokojnej okolicy, z dala od miejskiego zgiełku, co zapewnia idealne warunki do zamieszkania. (...)


